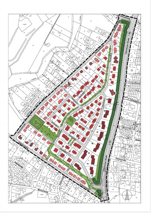
Bebauungsplan "Wohnquartier zwischen den Straßen Homannsweg, Neulandstraße und Jöllenbecker Straße"

  • Ort: Bielefeld
  • Auftraggeber: Privatinvestor/Stadt Bielefeld
  • Projektabschluss: 2018
  • Leistungen:
    • Erarbeitung eines Bebauungsplanes für die Errichtung eines gemischt genutzten Wohnquartiers
    • Verfahrensbetreuung
Stadtplanung
Stadtplanung
Stadtplanung