Navigation überspringen
über uns
Unternehmen
Team
Jobs
arbeiten bei H+T
Stellenangebote
Architektur
Stadtplanung
Bewertung
Verkehrswertgutachten
Kurzgutachten
Beleihungswertgutachten
Immobilienberatung
Kontakt
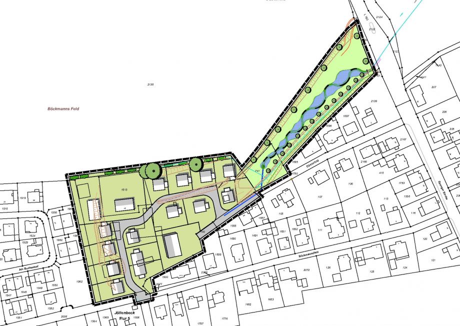
Erarbeitung eines Bebaungsplanes für ein Neubaugebiet
Ort:
Bielefeld Jöllenbeck
Auftraggeber:
Privatinvestor
Projektabschluss:
2022
‹
zur Übersicht
›